Mmmm..... cookies...

Afdeling

Ringen
285-0

Boliginfo

Adresser

Ringen 10 - 82, 5 - 189,
4600 Køge

Boligtype

Antal boliger

19

Energimærke

Andet

Altan: Nej
Elevator: Nej
Husdyr tilladt: Ja

Værelser

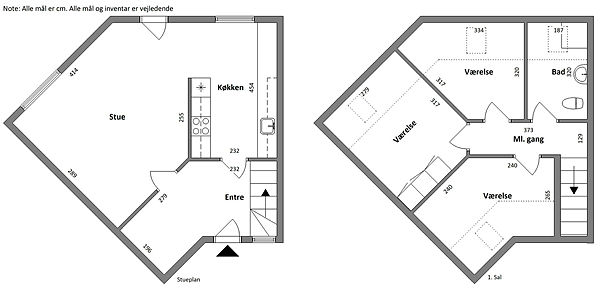
4

Størrelser

99-101 m2

Husleje

9970-10644 kr.

Indskud

23674-24149 kr

Ventetid

30 år - 35 år

Køge Kommune har anvisningsret til 30% af de ledige boliger i denne afdeling.

Nedenfor ses den forventede ventetid for interne ansøgere:

2 rums - 4-6 år.
3 rums - 4-6 år.
4 rums - 3-5 år.

Den forventede ventetid er en beregning, baseret på flere faktorer, herunder fraflytninger, aktive ansøgere mv. og kan derfor ændre sig.

Skriv dig op her!